»Dietrich-Bonhoeffer-Haus« Memmingen
- imayer7
- 14. Juli 2024
- 1 Min. Lesezeit
Aktualisiert: 11. Juni
Auftraggeber: Evang.-Luth.-Gesamtkirchengemeinde Memmingen
Team: graf architekten gmbh, Memmingen
Ergebnis: 4. Platz
Zeitraum: 2024
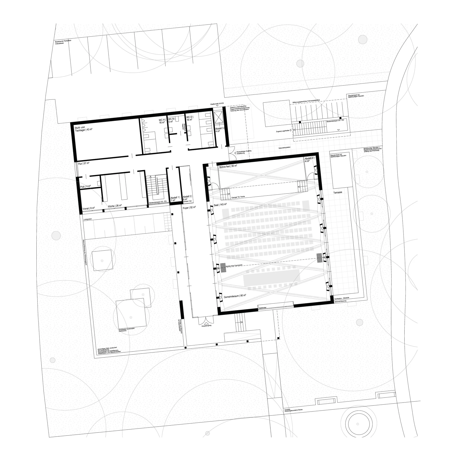
Im Jahr 2024 wurde ein Realisierungswettbewerb für den Neubau des Evang.-Luth. Dietrich-Bonhoeffer-Hauses in Memmingen ausgelobt. Gegenstand des Wettbewerbs war neben der Bauwerksplanung auch die Gestaltung der angrenzenden Freiflächen im historischen Stadtgraben westlich der Stadtmauer.
Die Wettbewerbsteilnahme fand in Kooperation mit graf architekten aus Memmingen statt.

Ziel des Wettbewerbs war es, ein architektonisch und freiraumplanerisch überzeugendes Gesamtkonzept zu entwickeln, das den Neubau als neues kirchliches Zentrum für Gemeinde und Dekanat in sensibler Weise in den stadträumlichen Kontext einbindet.

Die Außenanlagen sollten den Charakter des Stadtgrabens wahren, zeitgemäße Aufenthaltsqualitäten bieten und das neue Gebäude funktional und gestalterisch ergänzen.
Besonderes Augenmerk lag auf dem behutsamen Umgang mit dem denkmalgeschützten Umfeld, der Integration des erhaltenen Bestandskellers und der harmonischen Einbindung des Neubaus in die bestehende historische Struktur. Der Entwurf sollte Räume der Begegnung schaffen – offen, respektvoll und identitätsstiftend.
Auszug aus der Jury Entscheidung:
Die architektonische Haltung des Gebäudes wirkt in der Situation angemessen. Der Abstand zur Stadtmauer ist positiv zu bewerten. Die Einpassung in die umliegende Parksituation wird ebenso positiv gesehen. Positiv ist die Zurückhaltung des Gebäudes nach außen hin zur Umgebung. Der Saal wird durch ein besonderes Tragwerk betont wobei der Effekt mit der übrigen Zurückhaltung des Gebäudes abgewogen werden muss.










